Ngày nay băng tải được ứng dụng rất nhiều trong sản xuất tại Việt Nam nên băng tải không còn xa lạ với chúng ta, các nước công nghiệp phát triển thì họ đã ứng dụng băng tải trong sản xuất rất thành công, tạo nên những dây truyền sản xuất tự động và liên tục, giúp tạo nên các nhà máy sản xuất mang tính khoa học và hiện đại hoá trong sản xuất chứ không chỉ là công nghiệp hoá.
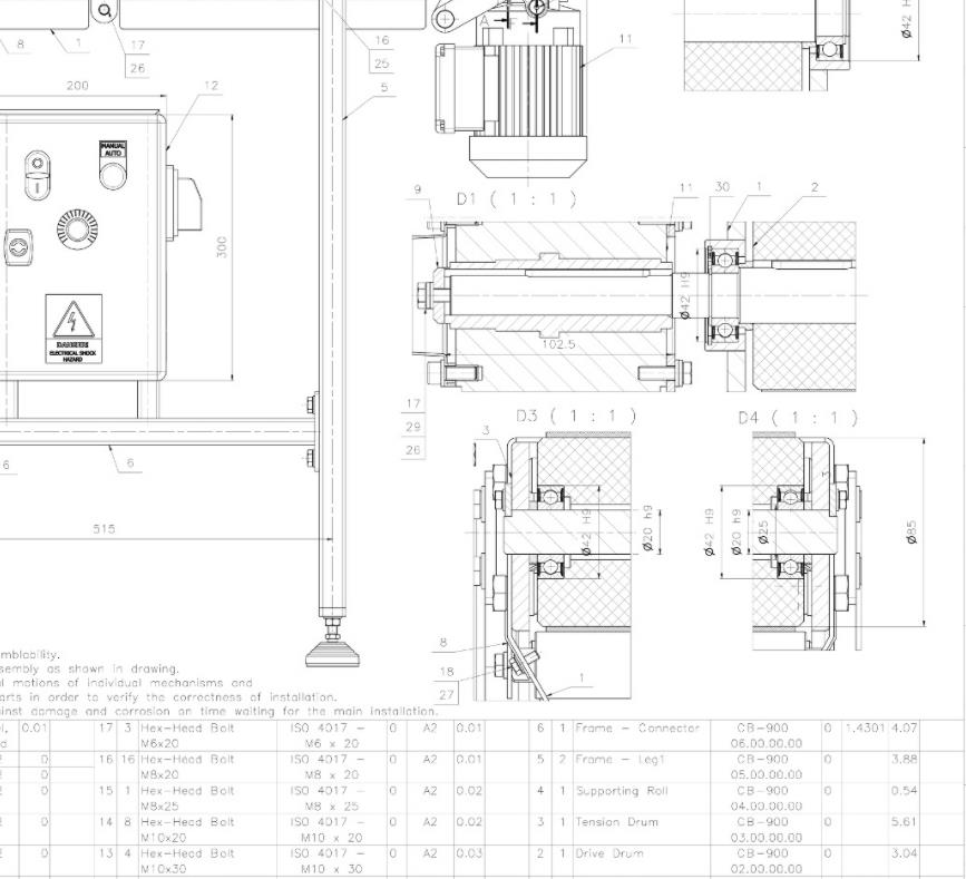
Bản vẽ băng tải



Thiết kế băng tải

Băng tải tự làm bụi bẩn

Chế tạo thép

Thiết kế băng tải thông suốt

Băng chuyền trục lăn


Thiết kế băng tải trục vít thiết kế máy cấp liệu trục vít 3D và 2D ..

Con lăn Turner 3D DWG Chi tiết cho AutoCAD
Trên đây là các bước cơ bản khi thiết kế hệ thống băng tải và thiết kế hệ thống băng tải là phải bao gồm các bước trên chứ không chỉ là vẽ lên bản vẽ và hình dáng của hệ thống băng tải.
Ngoài ra còn có các nguyên tắc về vận hành băng tải, căn chỉnh băng tải khi bị lệch…chúng tôi sẽ gửi đến các bạn trong những bài sau. Mọi yêu cầu cần giải đáp hay tư vấn xin hãy liên hệ Hưng Thịnh nhà thiết kế và sản xuất băng tải uy tín và lớn nhất cả nước.


